Новостройки
Дом, 98.80 м²

Дом, 98.80 м²

Площадь: 98.80м2
Староживотинное село, Рамонский район, Кооперативная улица
9 450 000
загрузка карты...
Описание
Дата публикации: 30.04.2026 г. 187 просмотров
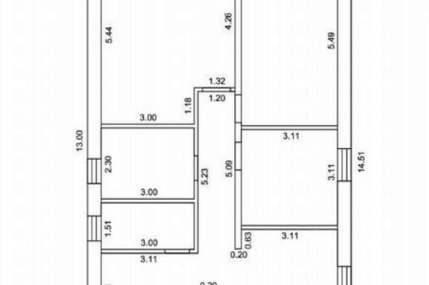
меньшеpбольшеПродаю одноэтажный меньшеbбольшеДом 98,8 м2меньше/bбольше 2025 г. постройки меньшеbбольшена 6 соткахменьше/bбольше для круглогодичного проживания в селе Староживотинное, ул. Кооперативная, по главной, асфальтированной улице, в 2 минутах при съезде, или в 22 км. от Воронежа. Дом находится рядом с хвойными деревьями, у многих на участки сосны и хвойный лес. Вокруг застройка соседей для жизни, все живут.меньшеspanбольше меньше/spanбольшеНесколько подъездов к дому. По дороге торговый центр, магазины, всё в шаговой доступности. меньшеpбольшеДля любителей Коттеджных поселков, чистого воздуха, спокойствия и уединений. меньшеpбольшеДом поставлен на кадастр. Кадастровый номер участка 36:25:6981000:307 меньшеbбольше6меньше/bбольше соток. меньшеpбольшеменьшеbбольшеДомменьше/bбольше меньшеbбольше98,8 кв.м. одноэтажный в глубину участка. меньше/bбольше меньшеpбольшеУстановлено: меньшеpбольше- Дверь с терморазрывом меньшеspanбольшеTorex меньше/spanбольшена гарантии; меньшеpбольше- окна меньшеspanбольшеRehauменьше/spanбольше 60меньшеspanбольше reseменьше/spanбольше на гарантии, над окнами установлены армированные перемычки. меньшеpбольшеФундамент – плита, толщина 20 см, двойная вязка арматуры 8,10 и 12 с шагом 20 см. Бетон М300меньшеspanбольше меньше/spanбольшена граните. меньшеpбольшеСтены – газоблок ВКБлок меньшеspanбольшеPREMIUM 200меньше/spanбольшех300х625 меньшеspanбольшеDменьше/spanбольше500 В2,5 меньшеspanбольшеFменьше/spanбольше50 с облицовочным кирпичом «под старину» (кладка под плетёную корзину) меньшеpбольшеАрмирование стен в 2 ряда, каждый 4 ряда. меньшеpбольше
Расположение
Город Староживотинное село
Район Рамонский район
Адрес Кооперативная улица
Характеристики
Площадь в сотках 6.00
Площадь 98.80
Материал стен Блочный
Елена Минакова
Специалист по недвижимости
Или оставьте свой номер и специалист вам перезвонит
Я согласен на обработку персональных данных