Новостройки
Таунхаус, 104.30 м²

Таунхаус, 104.30 м²

Площадь: 104.30м2
Гудовка село, Яблоневый, 47
загрузка карты...
Описание
Дата публикации: 30.01.2026 г. 468 просмотров
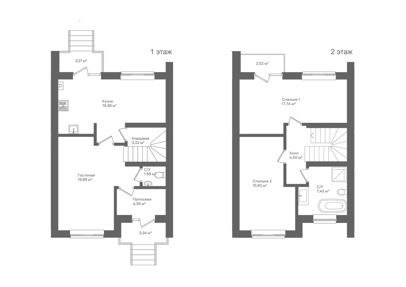
Таунхаус 104,3 кв.м с земельным участком 207 кв.м в ЖК «Новая Ведуга» современный формат загородной жизни ЖК «Новая Ведуга» загородный комфорт рядом с городом: закрытая территория и охрана; пруд с пляжем и зоны отдыха; детский сад, школа, магазины и аптека поблизости; парковочные места, спортплощадки, скверы. Удобное расположение: 9 км от Воронежа, быстрый выезд, 30 минут до центра. Современные коммуникации, чистая вода, возможность «умного дома». Купить таунхаус от застройщика без комиссии и переплат. БЕСПЛАТНОЕ ОДОБРЕНИЕ ИПОТЕКИ И СОПРОВОЖДЕНИЕ СДЕЛКИ! ДИЗАЙН-ПРОЕКТ В ПОДАРОК! Семейная ипотека от 5 % на весь срок! Семейная ипотека для семей с двумя детьми до 18 лет! Рассрочка с первоначальным взносом 20% до окончания строительства ( 3 кв 2026) Первоначальный от 10% Трейд-ин «Меняй старое на новое» 47В
Расположение
Город Гудовка село
Адрес Яблоневый, 47
Характеристики
Площадь 104.30
Количество этажей в доме 2
Жилой комплекс Новая Ведуга (коттеджный поселок)
Площадь кухни (м2) 19.86
Материал стен Газосиликатный блок
Мария Перминова
Отдел продаж первичного рынка
Или оставьте свой номер и специалист вам перезвонит
Я согласен на обработку персональных данных