Новостройки
1-комн. квартира, 46.90 м², 1 этаж

1-комн. квартира, 46.90 м², 1 этаж

Площадь: 46.90м2
Ямное, Рамонский район, Генерала Круковского ул., д. 4
загрузка карты...
Описание
Дата публикации: 11.02.2026 г. 105 просмотров
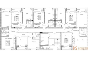
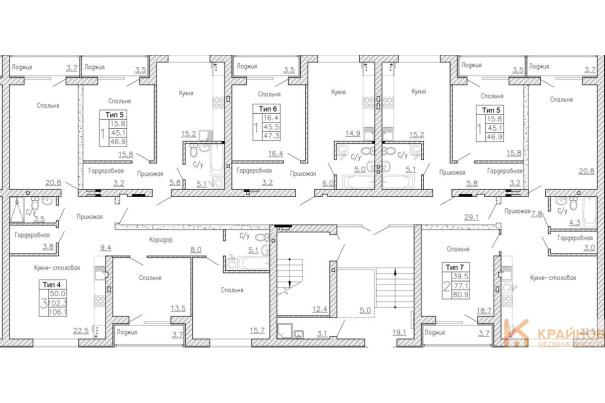
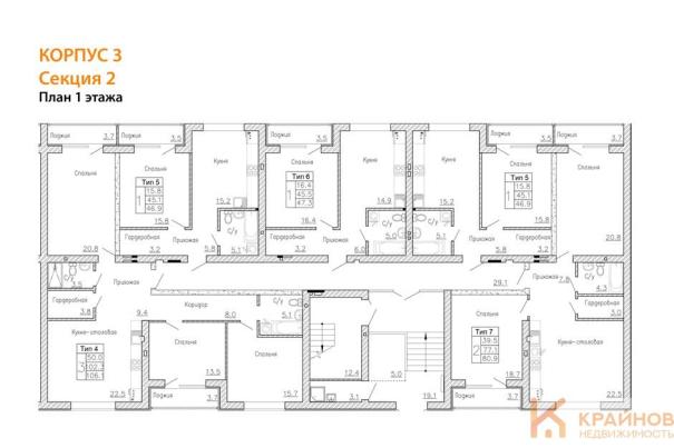
Квартира: 1 к 46,90 кв.м., 1 этаж в комплексе Генерала Круковского, 2 очередь, корп.3, сдача: 2кв. , этажей: 4, адрес Ямное село, Генерала Круковского ул., д. 4, Застройщик: СРК Дон.
Расположение
Город Ямное
Район Рамонский район
Адрес Генерала Круковского ул., д. 4
Характеристики
Тип недвижимости новостройка
Площадь 46.90
Кол-во комнат 1
Количество этажей в доме 4
Жилой комплекс Генерала Круковского
Этаж 1
Площадь кухни (м2) 15.20
Отделка Подготовка под чистовую отделку
Этап строительства Очередь 2
Материал стен кирпичный
Балкон лоджия
Санузел совмещенный
Мария Перминова
Отдел продаж первичного рынка
Или оставьте свой номер и специалист вам перезвонит
Я согласен на обработку персональных данных