| Город | Воронеж |
|---|---|
| Район | Железнодорожный район |
| Адрес | Ленинский проспект, 153 |
| Тип недвижимости | вторичная |
|---|---|
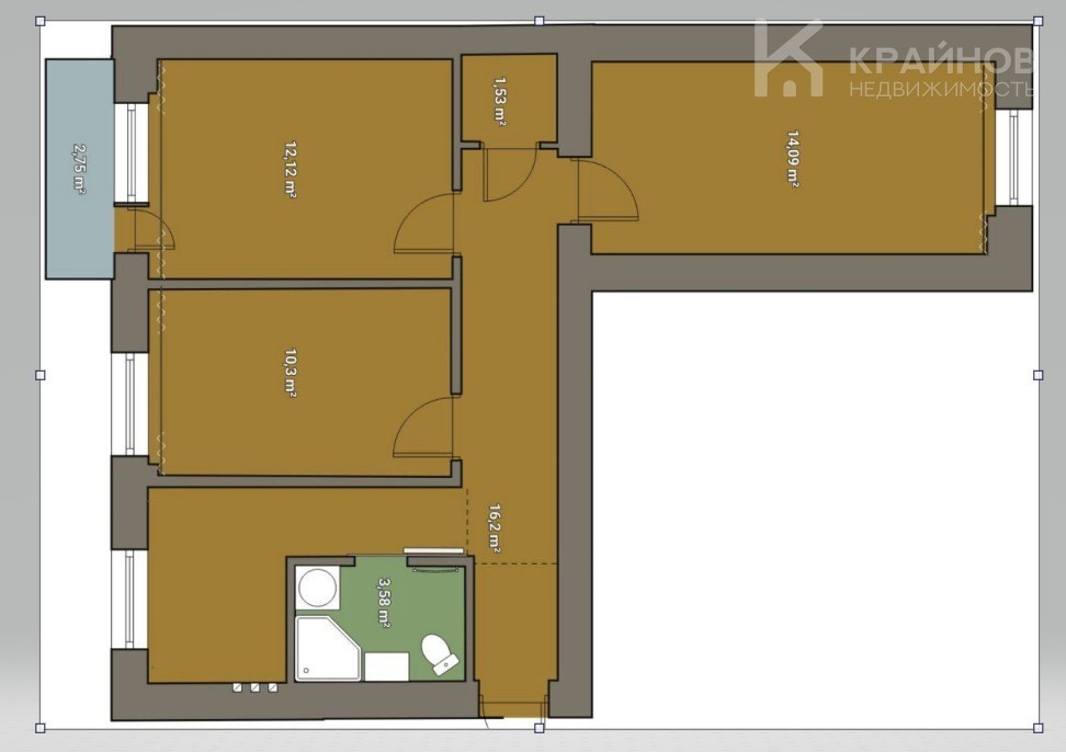
| Площадь | 59.30 |
| Кол-во комнат | 3 |
| Количество этажей в доме | 5 |
| Этаж | 2 |
| Площадь кухни (м2) | 6.00 |
|---|---|
| Отделка | евроремонт |
| Материал стен | кирпичный |
| Балкон | балкон |
| Санузел | совмещенный |
