Новостройки
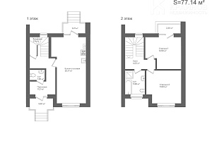
2-комн. квартира, 86.20 м², 1 этаж

2-комн. квартира, 86.20 м², 1 этаж

Площадь: 86.20м2
Гудовка село, Яблоневый, 22
загрузка карты...
Описание
Дата публикации: 14.01.2026 г. 99 просмотров
Коттеджный поселок проектируется по системе "умный поселок". Это 5 очередей строительства в едином авторском архитектурном стиле и в общей концепции городского комфорта загородного жилья. Жилой комплекс создается по европейским принципам квартальной застройки. Формат 2-этажных таунхаусов совмещает удобство благоустроенной территории с индивидуальностью частного дома. У каждого блока свой огороженный двор и место для парковки с удобным въездом.На территории поселка современные детские и спортивные площадки, пешеходные и велодорожки, продуманное освещение, дизайнерское озеленение. Территория закрыта от посторонних и круглосуточно охраняется. Чистоту и порядок в комплексе гарантирует собственная управляющая компания. Стандарты загородной жизни расширяются за счет продуманных коммуникаций: централизованное водоснабжение и канализация, собственные водозаборный узел для питьевого водоснабжения и подстанция с защитой от сбоев, индивидуальные газовые приборы и встроенно-пристроенные котельные, умное отопление дома в зависимости от температуры окружающей среды, зарядные станции для электромобилей в каждом квартале.Коттеджный поселок находится всего в 9 км от Воронежа. Для комфорта жителей до ЖК легко добраться не только на машине, но и на общественном транспорте, ведь до умной остановки всего 10 метров. В 8 км от жилого комплекса расположен горнолыжный комплекс Донгор.
Расположение
Город Гудовка село
Адрес Яблоневый, 22
Характеристики
Тип недвижимости новостройка
Площадь 86.20
Кол-во комнат 2
Количество этажей в доме 2
Жилой комплекс
Этаж 1
Площадь кухни (м2) 25.77
Этап строительства Очередь 3
Материал стен кирпичный
Санузел 2
Мария Перминова
Отдел продаж первичного рынка
Или оставьте свой номер и специалист вам перезвонит
Я согласен на обработку персональных данных