| Город | Воронеж |
|---|---|
| Район | Железнодорожный район |
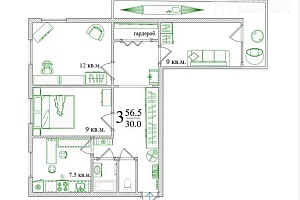
| Адрес | 25 Января улица, 50 |
| Тип недвижимости | вторичная |
|---|---|
| Площадь | 56.50 |
| Кол-во комнат | 3 |
| Количество этажей в доме | 9 |
| Этаж | 8 |
| Площадь кухни (м2) | 7.00 |
|---|---|
| Отделка | косметический |
| Материал стен | кирпичный |
| Балкон | лоджия |
| Санузел | раздельный |
